Skip to main content
Carole O'Banion
Contingent
$629,000

2309 Saidel Dr Unit 2
San Jose, CA 95124

Condo
Residential
2
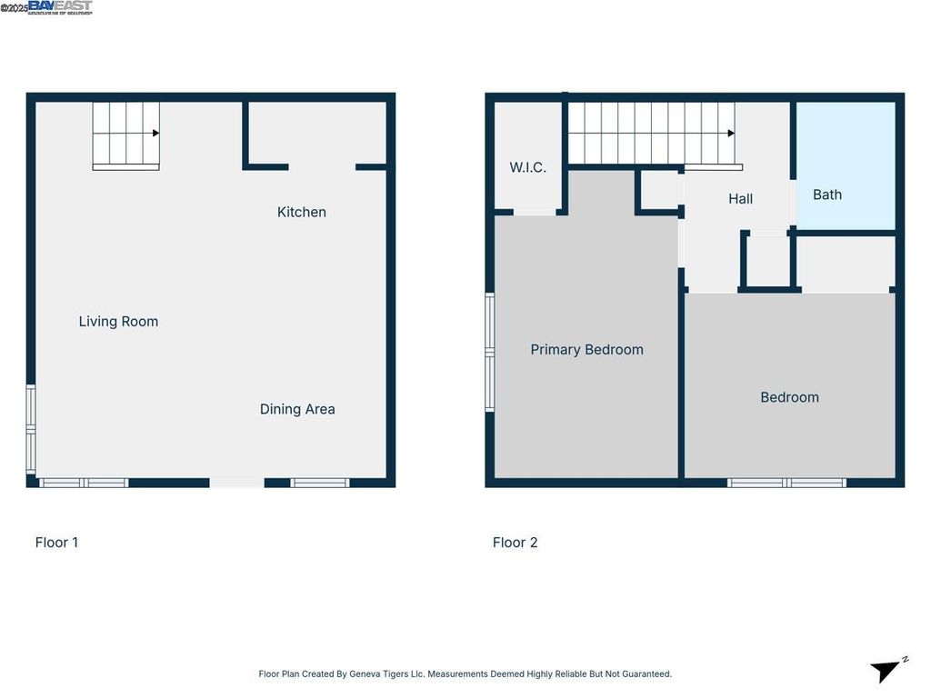
Beds
1
Baths
903
Sq. Ft.
0.06
Acre Lot
Courtesy: Melanie Dinh - Dudum Real Estate Group
Home> California> San Jose> 95124
Finally - a home that checks all the boxes! Beautifully updated 2-bedroom condo in Cambrian, right on the Los Gatos & Campbell border. Step inside to fresh interior paint, brand-new stainless steel appliances, modern lighting, and stylish laminate flooring throughout - no carpet here! The renovated bathroom features a sleek vanity and glass shower door for a clean, modern finish. The spacious layout includes two large bedrooms, and the primary suite offers a serene view of mature trees plus a generous walk-in closet - your private retreat. Enjoy the convenience of in-unit laundry, tandem carport parking for 2 vehicles, and an oversized storage closet rarely found in condos. This unit is larger than most within the community and enjoys a prime location set among lush, manicured lawns. The HOA makes life simple by covering water, garbage, landscaping, and access to the sparkling pool. With top Cambrian schools, proximity to Good Samaritan Hospital, Hwy 85/17, local parks, and scenic trails, the location couldn't be better. Whether you're a first-time buyer, downsizing to a low-maintenance lifestyle, or investing in a high-demand neighborhood - this is the opportunity you don't want to miss. Come see it and fall in love!
41113617
Condo, Other, 2 Story
2
Santa Clara
1 Full
1973
0.06 Acres
Public Water
2
Public Sewer
True https://photos.prod.cirrussystem.net/996/a40bc98ab30e537d02c5334c16fb8172/3535918055.jpeg 41113617
Loading...
Data Source: Constellation Data Labs®
The scores below measure the walkability of the address, access to public transit of the area and the convenience of using a bike on a scale of 1-100

Walk Score

Transit Score

Bike Score

Loading...
Data Provided by ATTOM Data®
Courtesy: Melanie Dinh - Dudum Real Estate Group
The data relating to real estate for sale on this web site comes in part from the IDX Program of the Bay East Association. IDX information is provided exclusively for consumers' personal, non-commercial use and may not be used for any purpose other than to identify prospective properties consumers may be interested in purchasing.
This content last refreshed on 11/18/2025 4:20 PM CST. Some properties which appear for sale on this web site may subsequently have sold or may no longer be available.
Information is deemed reliable but is not guaranteed.